0072 / 富山県富山市 N様

マンションで叶えた、 家じゅうに自然光が届く住空間

  • #80~90㎡
  • #1000~1500万円
  • #ナチュラル
  • #セカンドライフ

春には桜並木を見下ろせる眺望の良いマンションの高層階

分譲マンションをご購入されリフォームして住むことにされたN様ご家族の新居。
築42年と年数が経っていたことと、間取りも全て変えたいとの要望から、壁や床、配線や配管も全て解体するスケルトンリフォームに踏み切りました。

  • 施工エリア

    富山県富山市

  • 物件種別

    マンション

  • 築年月

    42年

  • 施工面積

    89㎡

  • 家族構成

    ご夫婦・子2人

  • 間取り

    4LDK

  • 工事費

    1,489万円

  • 施工期間

    100日間

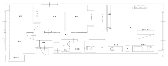
Plan

間取り図

  • Before
  • After

まっさらな状態からレイアウトされた4LDKは、新築とほぼ変わらない美しさ。「明るい家にしたい」というご家族の希望どおり、LDKの大きな窓から入る光が白い壁に反射し、家じゅうを明るく照らします。LDKは、物干しスペースを仕切る壁の高さを低くしたり、洗面化粧台の間仕切りをなくす工夫で、広く開放的になりました。

Point

リフォームのポイント

  • カウンターですくはパソコン作業などちょっとしたデスクワークに活躍します。キッチンと洗面化粧台を仕切らず、横並びに配置することで解放的な仕上がりになりました。

  • キッチンとバルコニーの間に腰壁を作り、生活エリアから目に触れることなく物干しスペースを確保しました。

  • リビングには大容量のパントリーを。季節のものから消耗品のストックまで収納が可能です。

  • 構造上、下がり天井になってしまうトイレは、便器の向きなど考慮し、狭さを感じないようレイアウトしました。

  • お風呂も入れ替え暖かなユニットバスへ変わりました。

  • 隣室との壁を天井まで全て塞がずに低い壁にすることで空調を共有できるよう工夫が施されています。

  • 通常は共有スペースのため替えられないマンションの玄関ドアも、管理会社に許可をとり交換しました。娘様が選ばれた自室のドアには、レトロな磨りガラスがあしらわれ、シンプルな内装を引き立てるアクセントになって

  • お子様2人の部屋は、一面だけ色違いのクロスでアレンジしています。

  • 北陸の暮らしを彩るライフスタイル提案型マガジン「ココリビング」にて掲載!ご協力いただきありがとうございました。

  • 施工中、頻繁に現場に通われたN様。職人としっかり打ち合わせたことがリフォーム成功の大きなポイントに。
    インタビューにもご協力いただきましたので、合わせてそちらもご覧ください。

わたしたちが担当させていただきました。

Comment

担当スタッフからのコメント

奥様は対面キッチンを希望されていましたが、配管の関係で難しく、代わりにカウンターを設けています。対面キッチン風の雰囲気をつくるだけでなく、キッチンをほどよく隠し、作業スペースと収納力を確保するアイデアです。カウンターテーブルは、家事の合間のパソコン作業などに便利。
ものが多いというご家族のため、収納にもこだわりました。大きなものや隠したいものは、全てリビング横のパントリーに。花粉症対策として、コート類を居室に持ち込まないようハンガー収納の位置も考慮しています。リビングの棚も、職人さんと細かく打ち合わせて造作しました。配管があり下がり天井になってしまうトイレは、便器の向きなど考慮し、狭さを感じないよう考えられています。
また、床面をフルフラットにしたいというご主人のご要望で、居室の扉はできる限り吊り戸になっています。床にレールがなく軽い力で動かせる吊り戸は、掃除もしやすいというメリットもあります。
ご家族それぞれの個室を新しくつくり、お子様2人の部屋は、一面だけアクセントクロスでアレンジ。一部屋だけ窓のない部屋には、リビングからの明かりが入るように、天井近くにFIX窓をつくり、隣室との壁を天井まで全て塞がずに低い壁にするなどの工夫が凝らされています。リフォーム前には個室がなかったというご家族が、ひとりの時間もゆっくり楽しめるようになりました。
マンションの一室に、細かなこだわりを全て詰め込んだフルリフォームに大満足というN様ご夫妻。心から落ち着ける終の住処を得て、新しいライフステージが始まります。

Archives

最新の施工事例

前へ
次へ

Contact

お気軽にご相談ください

小さな疑問にも、プロとして誠心誠意お答えします。
お気軽にお問い合わせください。

0120-12-8079

(OPEN:9:00~18:00 CLOSE:火曜日・水曜日)

電話番号をタップで発信できます。