0083 / 富山県高岡市 出会い相談所 ご縁 様

ご縁を紡ぐ場所に、やさしい色と想いを添えて

  • #~50㎡未満
  • #~500万円未満
  • #ナチュラル
  • #シンプル

──出会い相談所「ご縁」テナント改修リフォーム

大通りから一つ外れた静かな通り。駅前でアクセスも良好ながら、人通りがさほど多くないこの環境は、落ち着いて訪れたい相談所にぴったりの立地です。ビルの3階には、「ご縁」を大切に繋ぐ相談所が静かに佇んでいます。

  • 施工エリア

    富山県高岡市

  • 物件種別

    テナント

  • 築年月

    40年

  • 施工面積

    43.45㎡

  • 家族構成

    -

  • 間取り

    -

  • 工事費

    258万円

  • 施工期間

    20日間

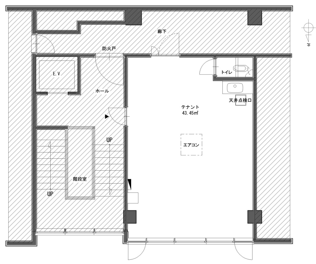
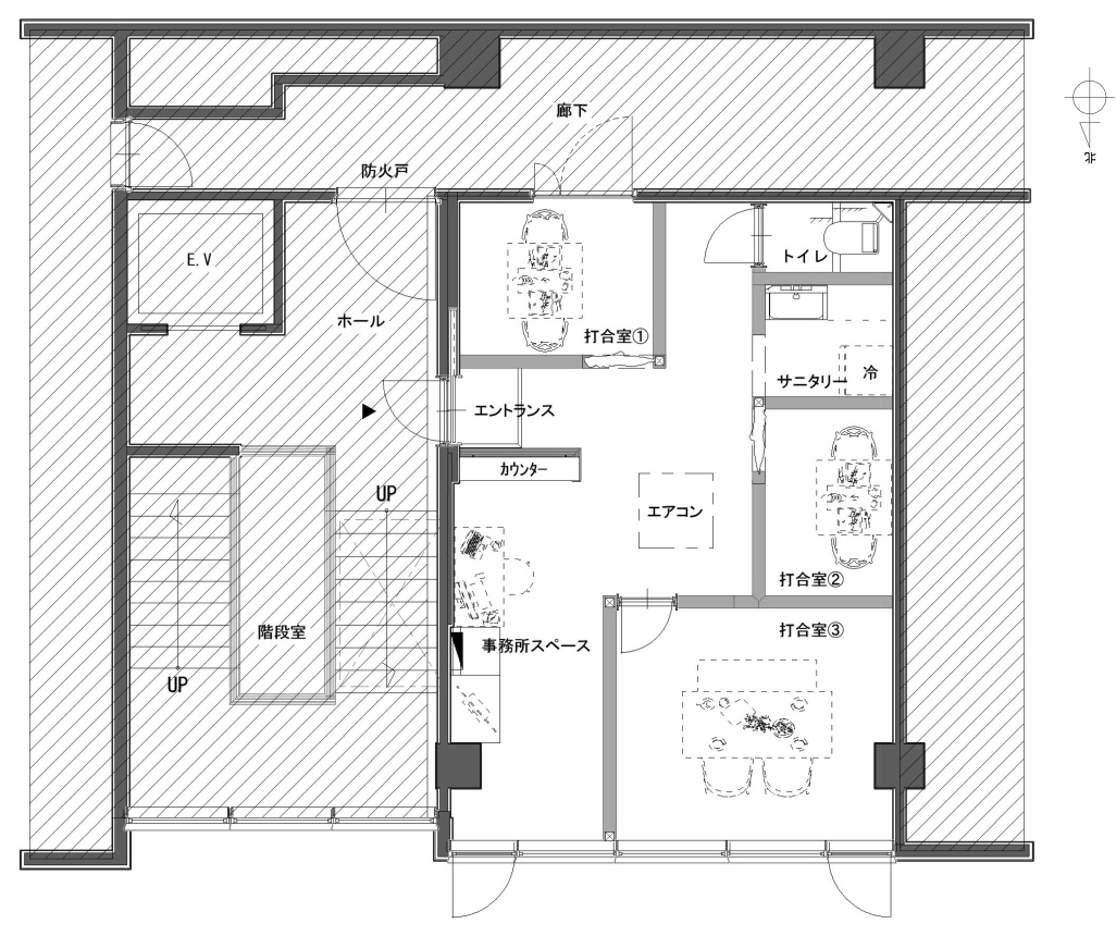
Plan

間取り図

  • Before
  • After

今回お任せいただいたのは、この出会い相談所「ご縁」のテナント改修リフォーム。
まっさらなテナントからスタートし、T様のご希望を伺いながらレイアウトを構築しました。個室(ご相談スペース)は3部屋を確保。天井に取り付けたエアコン一台で空調がしっかり行き渡るよう、壁の位置や開口の取り方にも配慮しています。

Point

リフォームのポイント

  • 訪れる人をやさしく迎える木目ドア。あたたかな印象で緊張をふっとほぐす入口になりました。

  • グリーンをアクセントに取り入れた空間。「ご縁を育てる色」を全体にそっと広げています。

  • サニタリースペース。コンパクトながらも、使い勝手は抜群です。

  • 落ち着きのある個室で、丁寧にお話を伺うためのプライベート空間を確保。

  • 光が差し込む明るいカウンセリングスペース。椅子には差し色のグリーンをチョイスし、ご縁を育む優しい空間に。

  • 天井エアコン1台で空調が隅々まで行き渡るよう計算されたレイアウト。快適さに加え、空間の広がりも感じられる設計です。

  • エントランスは緊張を和らげる木目ドアがアクセント。相談室の入り口はカーテンで柔らかく区切り、プライバシーを保ちながらも開放感を残したつくりに。

  • 構造上残さざるを得なかった部分を棚の中に巧みに隠し、すっきり収めた工夫ポイント。

  • 人を惹きつけるピンクを差し色に。柔らかな雰囲気の中に、そっと明るさを添えたトイレです。

  • なかなか出会いの少ないこの時代に寄り添う「出会い相談所 ご縁」様。気になる方はぜひお気軽にご相談くださいね。

わたしたちが担当させていただきました。

Comment

担当スタッフからのコメント

「出会い」を大切に育む場として、空間全体には“ご縁を育てるグリーン”をイメージカラーとして採用。やわらかい安心感と落ち着きを与えてくれる色味です。さらに、人を惹きつける「ピンク」を差し色としてトイレに取り入れ、優しさの中に小さな明るさを添えました。
入り口には木目のドアを採用し、訪れるお客様が最初の一歩でほっとできるよう、あたたかな印象に仕上げています。優しい色合いには、「少しでも緊張を解いてほしい」というT様の想いも込められています。
また、事務作業スペースに取り付けた棚の一つには、構造上どうしても撤去できなかった温水ヒーターを巧みに隠し、機能性と見た目の美しさを両立。すっきりとした空間に仕上げることができました。
新しい「ご縁」を大切に育むこの場所が、訪れる人にそっと寄り添い、「会えてよかった」と感じられるひとつの物語を重ねていけますように。空間に込めた想いが、未来の出会いを優しく照らしてくれることでしょう。

Archives

最新の施工事例

前へ
次へ

Contact

お気軽にご相談ください

小さな疑問にも、プロとして誠心誠意お答えします。
お気軽にお問い合わせください。

0120-12-8079

(OPEN:9:00~18:00 CLOSE:火曜日・水曜日)

電話番号をタップで発信できます。