0057 / 富山県高岡市 Y様

築50年の住宅再生事例
次世代まで安心できる快適な住まいへ

  • #80~90㎡
  • #1000~1500万円
  • #コンテスト受賞
  • #モダン
  • #セカンドライフ

TDYリモデルスマイル作品コンテスト2019 北陸ブロック別部門 奨励賞

リフォームで実現した理想のエントランスとゆとりのリビング

高岡市郊外の昔ながらの住宅街。シックなブルーの外観が目を惹くY様邸。新築から50年が経ち「リフォーム前は台風のたびに外壁が捲れていくような状態」だったとご主人は笑います。外装・内装共に傷みが目立ち始めてきたため、思い切って全面的なリフォームをすることに。

  • 施工エリア

    富山県高岡市

  • 物件種別

    戸建て

  • 築年月

    50年

  • 施工面積

    86.7㎡

  • 家族構成

    ご主人・息子さん

  • 間取り

    -

  • 工事費

    1,195万円

  • 施工期間

    60日間

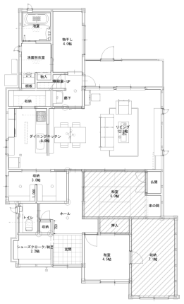
Plan

間取り図

  • Before
  • After

建築当時とは住まい方も変わり、使っていない部屋もあったため、間取りを大きく変更。和室とキッチンを隔てていた廊下をなくして、広々とした23帖のLDKを家の中心に。

Point

リフォームのポイント

  • 木目のキッチンとレンガ調のクロスは相性抜群!あたたかみ溢れる空間となりました。

  • 素材感の異なるアクセントクロスやダイニングのペンダントライトが引き立つよう、内装のベースカラーを統一。

  • 必要なものだけを置いたLDKでオフタイムをゆったりと過ごせます。

  • 既存の和室の襖を外せば約30帖の大空間が出現。リビングには少し和のテイストを取り入れて、続きの間と調和するように仕上げています。欄間とのマッチングも趣があり素敵です。

  • ハイグレードな雰囲気の玄関でお客様をお出迎え。

  • 大容量のシューズクロークで玄関はいつもスッキリ。高級感のある玄関のイメージを損ないません。

  • リフォーム前はL字型で狭かった洗面脱衣室ですが、階段下のスペースに洗濯機を設置することで、ゆとりのある使いやすい空間になりました。

  • 水まわりを一新し、快適でくつろげる空間へと生まれ変わりました。

  • 素材感のあるクロスをところどころに取り入れて、リフォーム前との変化を楽しんでいます。

  • 深みのあるブルーの外観が印象的な、上品な仕上がりになりました。

  • 「計画途中での間取りの変更など、わがままを聞いてもらって感謝しています。どこまで変更できるかは専門家に聞いてみないとわからないので、いろいろと相談にのってもらえてよかったです」

わたしたちが担当させていただきました。

Comment

担当スタッフからのコメント

リビングの演出に一役買っているのは、ヴィンテージウッド調のアクセントクロス。幅を合わせて造作したテレビボードや明かり採りの窓との調和も見所です。キッチンの両サイドには2つの収納室を設け、LDKに余分なものを置かないシンプルな暮らしを実現しました。白とダークブラウンを基調に内装の色数を抑えているので、アクセントの照明やクロスが引き立ちます。
ご主人の一番のお気に入りは大理石を模した玄関ホール。「家に入った瞬間に高級感を感じる大理石の床に昔から憧れていました。コーディネーターさんが提案してくれた赤とゴールドのクロスも特別感があってリフォーム前とは見違える玄関に。冒険してみて良かったです」
解体時に発見したシロアリ被害にもしっかりと対応し、経年劣化した床や壁の土台・下地も補修。息子さんの代まで安心して住み続けられる住まいへと生まれ変わりました。

Archives

最新の施工事例

前へ
次へ

Contact

お気軽にご相談ください

小さな疑問にも、プロとして誠心誠意お答えします。
お気軽にお問い合わせください。

0120-12-8079

(OPEN:9:00~18:00 CLOSE:火曜日・水曜日)

電話番号をタップで発信できます。