0050 / 富山県富山市 H様

それぞれが思い思いにくつろげる 大家族がゆったりと繋がる家

  • #90㎡以上
  • #2000万円以上
  • #コンテスト受賞
  • #ナチュラル
  • #モダン
  • #二世帯
  • #自然素材

第26回ジェルコリフォームコンテスト デザイン部門 リフォーム優秀賞

開放感と一体感を同時に得られる 4部屋をひとつにした広々リビング

「うちは家族みんなが仲が良くて、夕ご飯が済むと、寝る直前まで全員がリビングにいるんです」というH様ご家族は、2世帯7人住まい。築60年の家を、40年前に増築され、住んでおられましたが、昔の間取りが現在のライフスタイルに合わなくなってきたことで、リフォームを考えられたそう。

  • 施工エリア

    富山県富山市

  • 物件種別

    戸建て

  • 築年月

    60年

  • 施工面積

    197㎡

  • 家族構成

    大人5人(夫婦、両親、妹)+子ども2人

  • 間取り

    7LSDK

  • 工事費

    2,405万円

  • 施工期間

    100日間

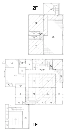
Plan

間取り図

  • Before
  • After

古い間取りのまま使わなくなっていた和室を取り払い、4つの部屋をひとつにしたことで、リフォーム前のリビングの約4倍の広さに。存在感のある天然木のダイニングテーブル、65インチのTVが小さく見えるほどゆったりなソファスペース、掘りごたつのある畳コーナーと、ひとつのLDKでありながら、7人家族それぞれが思い思いにくつろげる空間づくりを行いました。

Point

リフォームのポイント

  • 畳はちょっと腰掛けるのにもちょうどいい高さ。年配のお客様にも喜ばれています。

  • 母娘3人でキッチンに立つことも多いのでキッチンは動きやすい広さを確保。大容量の収納や食品庫もフル活用。

  • 畳の下は収納になっており、機能性も◎

  • 外出から帰ってリビングに行く前に手洗いする習慣が身に付きます。

  • 玄関手摺は木材にこだわり、材木屋さんで探し抜いた、存在感のある一品。

  • キッチン奥には十分な収納スペースがある食品庫を設けました。

  • 物置になっていた小屋根部屋を寝室に。大胆に梁を見せ天井に和のアクセントを。

わたしたちが担当させていただきました。

Comment

担当スタッフからのコメント

「収納が増えてとても便利になりました。小さな子供がいるので、着替えやおもちゃなどリビングで使うことの多いモノは、畳コーナー収納にしまっています。子供も使いやすい高さにあるから、使ったおもちゃを子供が自分で片付けたりもしてくれます」と奥様。「収納を引き戸の後ろに隠しておけるので、見た目がすっきりしていいですね。急な来客にも慌てなくて済みますし、人を呼びたくなる家になりました」とお母様も満足げです。
造りのしっかりした昔の建材を活かし、梁を見せる仕上がりで、和のテイストを残し落ち着ける内装に。リビングの他、物置になっていた2階の小屋根部屋も、大胆に梁を見せることで和モダンのお洒落な寝室に生まれ変わりました。

Archives

最新の施工事例

前へ
次へ

Contact

お気軽にご相談ください

小さな疑問にも、プロとして誠心誠意お答えします。
お気軽にお問い合わせください。

0120-12-8079

(OPEN:9:00~18:00 CLOSE:火曜日・水曜日)

電話番号をタップで発信できます。